Objektart
Adresse
Objektdaten
Informationen
Ausstattung
Details
Hier bietet sich Ihnen die Gelegenheit, ein gut geschnittenes Reihenhaus in beliebter Lage von Meerbusch Osterath zu erwerben.
Das Objekt befindet sich in einer ruhigen Anliegerstraße und verfügt über insgesamt ca. 115,97 qm Wohn-Nutzfläche.
Auf insgesamt 2 Wohnebenen lässt sich hier Ihr persönlicher Wohntraum verwirklichen.
Das helle Wohnzimmer bietet genügend Platz. Hier empfangen Sie Ihre Gäste und es trifft sich die Familie um gemeinsame Stunden zu verbringen. Ein direkter Zugang vom Wohnzimmer aus führt auf die Sonnenterrasse und in den gepflegten Garten, der gerade in den Sommermonaten zum Verweilen einlädt.
Der Eingangsbereich verfügt über ein Gäste-WC und zusätzlich ausreichend Platz für eine Garderobe.
Die Küche ist sowohl vom Flur, als auch direkt vom Wohnzimmer aus zu erreichen.
In der ersten Etage befindet sich ein helles Schlafzimmer, das Tageslichtbadezimmer und zwei weitere Kinder- oder Arbeitszimmer.
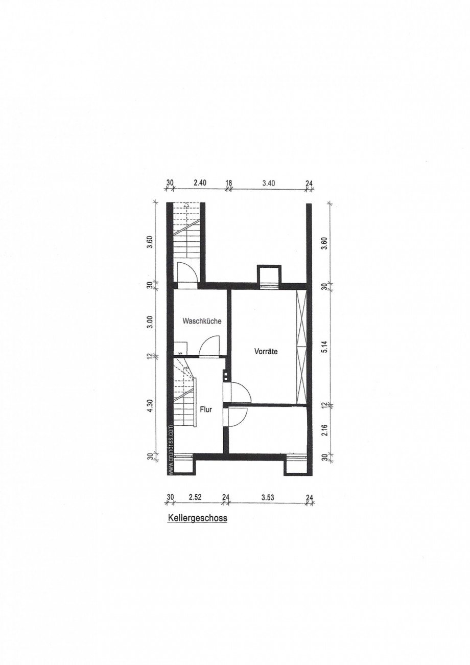
Das Haus ist voll unterkellert und bietet neben einem Hauswirtschaftsraum einen Vorratskeller und einen geräumigen Hobbyraum, welcher vielfältig genutzt werden kann.
Zwar befindet sich das Haus in einem sanierungsbedürftigen Zustand, jedoch kann hier mit einem überschaubaren Budget ein echter Wohntraum entstehen.
o Wohnfläche ca. 75,97 qm
o Nutzfläche ca. 40 qm
o 4 Zimmer
o Tageslichtbadezimmer
o Voll unterkellert
o Gäste WC
o Großer Garten
o Dach erneuert 2010
o Massive Stahlbetondecken
o Massive Gebäudegrundstruktur
o Beliebte Wohnlage
o Sanierungsbedürftig
o Sofort verfügbar
Meerbusch Osterath ist einer der beliebtesten Stadtteile im Rhein-Kreis-Neuss, umgeben von einem großen Naherholungsgebiet. Hier können Sie in Ihrer Freizeit Ruhe und Entspannung genießen.
Der Ort hat eine hervorragende Infrastruktur mit allen Einkaufsmöglichkeiten.
Ärzte, Schulen, Kindergärten, mehrere Supermärkte und Discounter, eine Apotheke und diverse Restaurants runden das Angebot ab. Bis zur Neusser Innenstadt sind es mit dem Auto ca.10 Minuten, Düsseldorf erreichen Sie ebenfalls in ca. 10 Minuten Fahrzeit.
Es stehen diverse Busverbindung in die umliegenden Stadtteile und Städte zur Verfügung. Des Weiteren werden weitere Schulbusverbindungen angeboten.
Die Autobahnanbindungen an die A44, A52 und A57 befinden sich in unmittelbarer Umgebung.
Die nächste Bahnanbindung befindet sich in der Ortsmitte in die Richtungen Neuss, Düsseldorf und Krefeld.
Alle Angaben beruhen auf Informationen des Eigentümers. Für die Richtigkeit können wir keine Gewähr übernehmen.
Energieausweis (Bedarfsausweis)
354,20 kWh / (m²*a) Endenergiebedarf
354,20 kWh / (m²*a) Endenergiebedarf
354,20 kWh / (m²*a) Endenergiebedarf
Weitere Informationen
| Wesentlicher Energieträger | Strom |
| Energieausweis Ausstelldatum | 2025-12-11 |
| Energieausweis gültig bis | 10.12.2035 |
| Energieausweis Jahrgang | ab dem 1.5.2014 |
| Energieausweis Werteklasse | H |
| Energieausweis Baujahr | 1956 |
| Energieausweis Gebäudeart | Wohngebäude |
| Befeuerung | Elektro |
